
廊坊大厂开发区·高台双边高标准库房招商
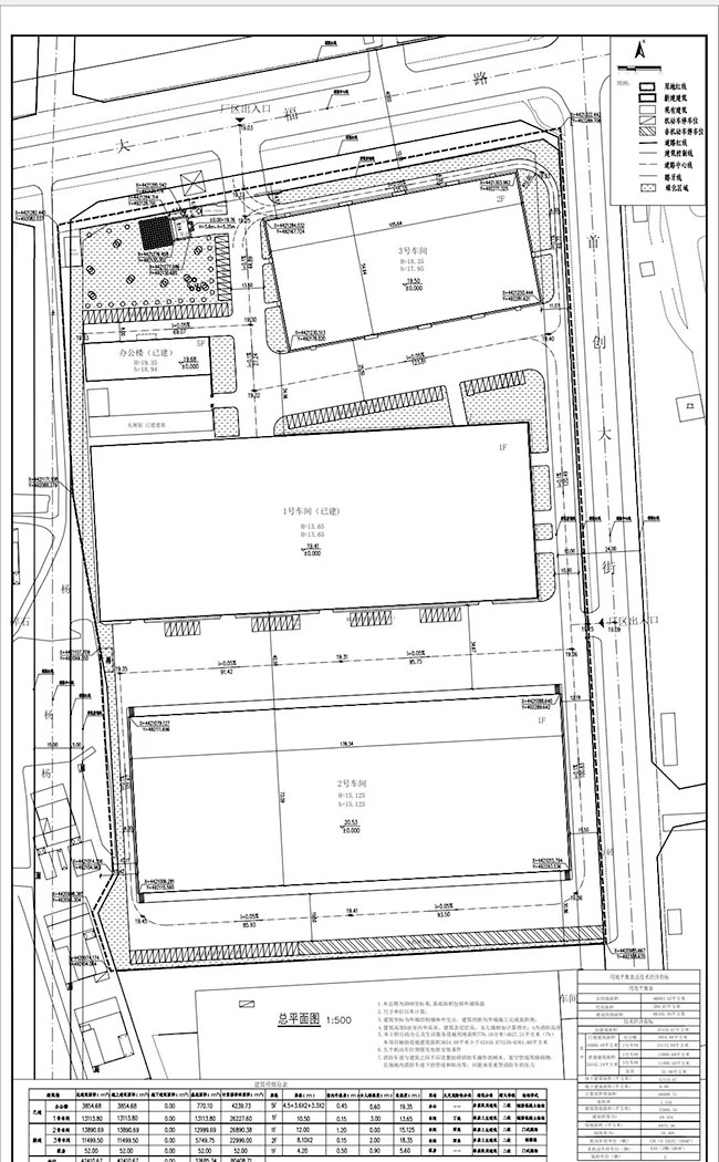
园区总占地100亩,整体规划规整,布局合理,配套完善,可满足企业仓储、物流、中转、生产加工等多元化经营需求。
园区内配套办公及住宿用房共计3854.68㎡,功能齐全,可直接投入使用,省去企业另行租赁办公住宿的成本与麻烦。
现有建成高标准库房两栋:
一号库建筑面积13113.8㎡,二号库建筑面积13890.69㎡,均为高台双边库设计,装卸货高效便捷;库内净高10米,空间开阔利用率高,库房前回车距离达34米,大型货车进出、转弯、调头无压力,极大提升物流周转效率。
另有7000㎡预留建设用地(规划三号库),可根据入驻企业实际需求定制建设,灵活适配不同规模企业的长期发展规划。
园区位置优越,交通便利,产权清晰,配套齐全,诚邀各类仓储物流、电商云仓、冷链仓储、生产加工等优质企业实地考察、入驻经营!